„LIVING@MANOR II“ – neuer Stadtteil Bellevue Schweinfurt:
An der Anna-Weichsel-Straße errichtet die Bauprojekte Schweinfurt GmbH & Co. OHG, bestehend aus den beiden Schweinfurter Traditions-Bauunternehmen Glöckle und Riedel, seit 2018 bereits die dritte Wohnanlage.
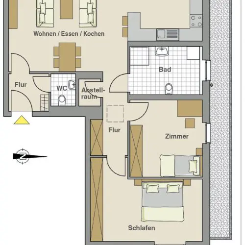
Die Wohnanlage „Living@Manor-II“ profitiert nicht nur von der ansprechenden, klaren modernen Architektur der Gebäude, sondern auch von der Lage im weitläufigen neuen Wohngebiet Bellevue mit altem Baumbestand. Die überschaubare Anzahl der Wohnungen in den drei Punkthäusern schafft angenehme Nachbarschaft und bietet Ihnen viel Raum für Privatsphäre. Die drei Punkthäuser mit insgesamt 30 Eigentumswohnungen werden nach dem Energie-Effizienz-Standard KfW 55 errichtet.
In den Wohnungen sorgen überwiegend bodentiefe Fensterelemente mit elektrischen Raffstores für lichtdurchflutete Räume. Ausstattungsdetails wie bodengleiche Duschen, Hebeschiebetüren im Wohnbereich zum Freisitz, Echtholzparkett und Fußbodenheizung schaffen eine angenehme Wohnatmosphäre.
Alle Wohnungen der Punkthäuser verfügen über einen Balkon, eine Loggia oder eine Terrasse mit Gartenanteil sowie in den Penthouse-Wohnungen über eine Dachterrasse. Die drei Punkthäuser werden jeweils über einen Aufzug direkt mit der Tiefgarage verbunden, in der sich 36 PKW-Stellplätze befinden. Die Gestaltung mit hellen Farben an der Fassade untermalt den modernen Charakter der Wohnanlage. Für alle, die eine klare Architektur bevorzugen, entstehen in diesem neuen Wohnquartier Eigentumswohnungen mit Wohlfühl-Atmosphäre.
Die Wohnanlage „Living@Manor-II“ verfügt über eine Tiefgarage mit 36 PKW-Stellplätzen. Von der Tiefgarage erreichen Sie Ihre Wohnung bequem über das Treppenhaus bzw. den Aufzug. Jeder Wohnung ist ein Kellerabteil zugeordnet. Gemeinschaftsräume für den Hausmeister, die Technik oder zum Abstellen von Kinderwägen, befinden sich ebenfalls im Kellergeschoss.


